产权性质:商品房住宅 物业类型:普通住宅
产权年限:70年产权 房本年限:满五年
参考预算:首付27万,月供6708元
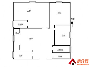
世纪半岛未名城三期精装,大4房,户型方正大气。
1、房源位置好:
a.房源位于小区中心,位置相对安静。
b.房型相当正气。客厅(xx平米)和主卧(xx平米)朝南,次卧(xx平米)和书房(xx平米)超东北;
c.附带阳台看小区中心露天游泳池,景观相当好。
4、住宅房:
该小区属70年产权住宅房,可以入。物业费每平方xxx元,水电费跟民用一样便宜,地下停车位充足,保安24小时巡逻,安全措施到位。
联系我时,请说是在昆明找房网看到的,谢谢!









