产权性质:商品房住宅 物业类型:普通住宅
产权年限:70年产权 房本年限:满二年
唯一住房:是
参考预算:首付48万,月供11577元
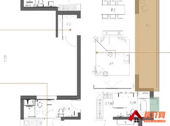
一环万象城旁,大平层213平4房4卫,321万,大横厅,现房。
1、通透户型空气流通性强,自家房屋及楼道公共区域无异味。
2、视野无遮日照长采光足,大落地窗采光面大
3、低密低容楼间距大,居住舒适度高。活动空间广
4、人车分流,老人孩子小区内活动不担心安全问题
5、高绿化,公园式的景观,幽美的环境能给人带来好心情
6、内部设施完善,设有儿童游乐场健身器材以及老年活动区域。
联系我时,请说是在昆明找房网看到的,谢谢!









