欢迎来到昆明找房网!
业务电话:191-
8734
-
13
15、187-
2500
-
29
44 周一至周五
早8:00~晚6:00
立即发布信息
首页
租房
二手房
商铺
写字楼
厂房
仓库
车位
房产周边
求租求购
房产资讯
APP下载
昆明找房网
>
二手房
>
二手房房源
>
盘龙二手房房源
(新迎小区南区三组团小区二手房)盘龙新迎小区南区三组团,4室
2025-11-05 16:15:23发布,还有
95
天过期,0浏览
置顶
定时刷新
|
收藏
|
举报
|
4图
价格:
83万元
房型:
4室及以上
面积:
102.41平米
装修:
简单装修
楼层:
高层(共7层)楼
产权年限:
70年
身份:
中介
区域:
盘龙
地址:
昆明-盘龙-新迎小区南区三组团
联系人:
昆明经纪人
电信
电话:
点击查看完整号码
昆明找房网提醒您:
本站仅作为便民信息搬运工,请自行分辨信息真假,联系前请仔细阅读《
谨防诈骗须知
》
信息详情
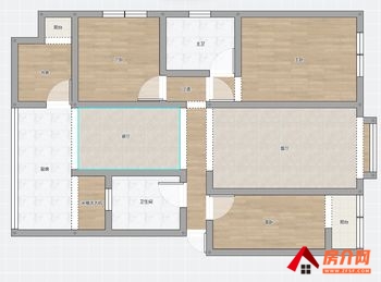
新迎新城新迎一小旁,三组团,端头房三面采光,四室两厅。
1.地址:新迎小区三组团
2.面积:证上面积102平米
3.楼层:房子在5层,总高7层。
4.户型:4室2厅1卫
5.朝向:东南向
6.采光:通透,明亮。
联系我时,请说是在昆明找房网看到的,谢谢!
首发网址:http://www.kmzf.cn/ershoufangfangyuan/7654.html
查看全部二手房房源信息
发布一条二手房房源信息
相关图片
您可能感兴趣
[全国推广]
昆明盘龙江东花城 3室2厅二手房出售,报价:110万元
[4图]
11-09
[全国推广]
官渡春城明珠,4室2厅二手房出售,报价:160万元
[4图]
11-08
[全国推广]
#未名城(3期)小区二手房#西山未名城(3期),3室2厅二手
[4图]
11-07
[全国推广]
西山恒大云报华府,3室2厅二手房出售,报价:143万元
[4图]
11-07
[全国推广]
(美丽家园小区二手房)五华美丽家园,3室2厅二手房出售,14
[4图]
11-05
[全国推广]
#龙江金茂府小区二手房#西山龙江金茂府,4室2厅二手房,报价
[4图]
11-05
[全国推广]
#金泰国际三期小区二手房#五华金泰国际三期,4室2厅二手房,
[4图]
11-05
[全国推广]
#大华公园天下时光园小区二手房#盘龙大华公园天下时光园,3室
[4图]
11-04
[二手房房源]
龙湖山海原著御景小区二手房丨西山龙湖山海原著御景,3室2厅二
[4图]
11-09
[二手房房源]
#云锡奥城(别墅)小区二手房#安宁云锡奥城(别墅),5室3厅
[4图]
11-09
[二手房房源]
安宁融创山水融城,2室2厅二手房出售,报价:28万元
[4图]
11-09
新发布
[整租]
「昆明」盘龙彩云间花园,1室1厅房子出租(合租),租金每月7
[4图]
11-10
[整租]
俊发盛唐城星河郡小区房屋出租丨盘龙俊发盛唐城星河郡,3室2厅
[4图]
11-10
[写字楼出租]
观云海(办公) >176.5m²写字楼出租,参考报价:
[4图]
11-10
[商铺出售]
「昆明」官渡海伦国际3000m²商铺出售,参考报价:2588
[4图]
11-10
[资讯热点]
昆明物品回收-昆明哪里回收黄金项链
[图]
11-10
上一篇:
学府协信天地(办公) >268m²写字楼出租,参考报价
下一篇:
绿园小区小区房屋出售,盘龙绿园小区,4室2厅,报价:116万
发布人档案
fc9704
用户级别:
新手上路
信用等级:
实名认证:
附近城市二手房房源
二手房房源
相关类目
二手房房源
二手新房
附近区县
五华信息网
盘龙信息网
官渡信息网
西山信息网
安宁信息网
呈贡信息网
宜良信息网
石林信息网
晋宁信息网
东川信息网
富民信息网
嵩明信息网
寻甸信息网
禄劝信息网