欢迎来到昆明找房网!
    业务电话:191-8734-1315、187-2500-2944 周一至周五早8:00~晚6:00
loading
立即发布信息

      绿园小区小区房屋出售,盘龙绿园小区,4室2厅,报价:116万

      2025-11-05 16:15:45发布,还有95天过期,0浏览
    • 置顶
    • 定时刷新  |
    • 收藏  |
    • 举报  |
    • 价格:116万元
    • 房型:4室及以上
    • 面积:130.54平米
    • 装修:简单装修
    • 楼层:中层(共7层)楼
    • 产权年限:70年
    • 身份:中介
    • 区域:盘龙
    • 地址:昆明-盘龙-绿园小区
      • 联系人:昆明经纪人 电信
      • 电话: 点击查看完整号码
        • 昆明找房网提醒您:本站仅作为便民信息搬运工,请自行分辨信息真假,联系前请仔细阅读《谨防诈骗须知
    • 信息详情

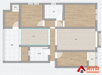
       绿园小区,中间好楼层,近医院,近地铁,双卫格局,商圈成熟。核心卖点:
       1.地址:绿园小区小区安静。
       2.面积:建筑面积119平米
       3.楼层:房子在3楼(总层高7顶).
       4.户型:4室2厅1厨2卫1阳台.
       5.结构:砖混结构.
       6.装修:中装修.
       7.设施:水、电、天然气、太阳能
       8.总价:房东售价116万。
       9.税况:已满2年,无营业税。
       10.建房时间:2000年.
       1
       1.可银行按揭贷款。
       12.产权性质:私有,两证齐全。
       13.户籍情况:。
       

    联系我时,请说是在昆明找房网看到的,谢谢!

    首发网址:http://www.kmzf.cn/ershoufangfangyuan/7655.html
    查看全部二手房房源信息
    发布一条二手房房源信息
    • 相关图片

    绿园小区小区房屋出售,盘龙绿园小区,4室2厅,报价:116万 绿园小区小区房屋出售,盘龙绿园小区,4室2厅,报价:116万 绿园小区小区房屋出售,盘龙绿园小区,4室2厅,报价:116万

    • 您可能感兴趣
    • 新发布