欢迎来到昆明找房网!
业务电话:191-
8734
-
13
15、187-
2500
-
29
44 周一至周五
早8:00~晚6:00
立即发布信息
首页
租房
二手房
商铺
写字楼
厂房
仓库
车位
房产周边
求租求购
房产资讯
APP下载
房产中介
昆明找房网
>
二手房
>
二手房房源
>
盘龙二手房房源
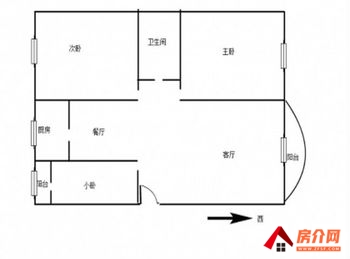
鸣翠园(东区)小区房屋出售,盘龙鸣翠园(东区),3室2厅,报
2026-01-17 01:52:56发布,还有
35
天过期,10浏览
置顶
定时刷新
|
收藏
|
举报
|
4图
查看更多图片
图片由用户自行上传,本网站无法鉴别所上传图片版权,如涉及侵权请通知,本网站将及时处理。
价格:
85万元
房型:
3室2厅
面积:
92.77平米
装修:
中等装修
楼层:
中层(共7层)楼
产权年限:
70年
身份:
中介
区域:
盘龙
地址:
昆明-盘龙-鸣翠园(东区)
联系人:
昆明经纪人
电信
电话:
点击查看完整号码
昆明找房网提醒您:本站信息所展示的图片、价格、内容仅供参考,让您提前转账汇款的均有骗子嫌疑,不要轻易相信,联系前请仔细阅读《
谨防诈骗须知
》。
信息详情
北辰地铁口,江东鸣翠园,精装3房,中楼层上明通。有些图片看起来没那么精美,但这些全部为真实照片。我不会用图片来骗您的来电!
一、房源优势
1、正规3房。东西.日照充足.
2、现在的房子相比年初增近12%
3、室内精装.拎包入住。
联系我时,请说是在昆明找房网看到的,谢谢!
首发网址:https://www.kmzf.cn/ershoufangfangyuan/14134.html
查看全部二手房房源信息
发布一条二手房房源信息
相关图片
您可能感兴趣
[全国推广]
(世纪城玉春苑小区二手房)官渡世纪城玉春苑,4室2厅二手房出售,160万元
[4图]
02-28
[全国推广]
(大华锦绣麓城盛学苑小区二手房)盘龙大华锦绣麓城盛学苑,3室2厅二手房出售,110万元
[4图]
02-20
[全国推广]
西山滇池高尔夫(别墅),5室3厅别墅出售,报价:3000万元
[4图]
01-28
[全国推广]
(邦盛水映长岛小区二手房)「昆明」官渡邦盛水映长岛,3室2厅
[4图]
01-25
[全国推广]
(光明璟宸苑小区二手房)呈贡光明璟宸苑,4室2厅二手房出售,
[4图]
01-17
[全国推广]
探矿厂生活区A区小区房屋出售,盘龙探矿厂生活区A区,2室1厅
[4图]
01-16
[全国推广]
呈贡金茂国际新城栀云苑,3室2厅二手房出售,报价:76万元
[4图]
01-15
[全国推广]
金茂国际新城栀云苑小区二手房丨呈贡金茂国际新城栀云苑,4室3
[4图]
01-15
[二手房房源]
金苑住宅区(盘龙区)小区房屋出售,盘龙金苑住宅区(盘龙区),4室2厅,报价:96.8万元
[4图]
03-02
[二手房房源]
盘龙新迎小区南区南组团,3室2厅二手房出售,报价:66万元
[4图]
03-02
[二手房房源]
新迎小区南区七组团小区房屋出售,盘龙新迎小区南区七组团,3室2厅,报价:67万元
[4图]
03-02
新发布
[整租]
春明景和小区房屋出租丨官渡春明景和,3室2厅房子出租(合租),租金每月600元
[4图]
03-02
[整租]
昆明官渡织布营 1室0厅房子出租(整租),租金每月850元
[4图]
03-02
[整租]
#金马腾苑小区房屋出租#官渡金马腾苑,2室2厅房子出租(整租),租金每月1900元
[4图]
03-02
[整租]
「昆明」官渡中铁百年印象,4室2厅房子出租(合租),租金每月500元
[4图]
03-02
[资讯热点]
昆明虹山小区楼盘房价、楼盘地址,昆明虹山小区楼盘详细介绍
[图]
03-22
上一篇:
#荷塘月色小区二手房#「昆明」五华荷塘月色,3室2厅
下一篇:
盘龙任旗营,3室2厅二手房出售,报价:80万元
发布人档案
fc4626
用户级别:
新手上路
信用等级:
实名认证:
附近城市二手房房源
二手房房源
相关类目
二手房房源
二手新房
附近区县
五华信息网
盘龙信息网
官渡信息网
西山信息网
安宁信息网
呈贡信息网
宜良信息网
石林信息网
晋宁信息网
东川信息网
富民信息网
嵩明信息网
寻甸信息网
禄劝信息网